Verkocht
Verkocht: Pleinweg 17A, 3081 JC Rotterdam
Beschrijving
Royale benedenwoning met een ruime tuin en een grote stenen berging. De woning heeft een grote woonkamer en een ruime slaapkamer.De ligging is uitstekend! Het Hart van Zuid, met onder andere winkel-, bus- en metrostation Zuidplein bevindt zich op een paar minuten loopafstand. Met de metro ben je in 10 minuten in het Centrum van Rotterdam.
Diverse uitvalswegen, waaronder de A15 en A29, bevinden zich vlakbij. Het gebied rond Winkelcentrum Zuidplein heeft een trendy metamorfose ondergaan en is volop in ontwikkeling. Ook zijn hier veel restaurantjes, een zwembad met Olympische afmetingen, het Kunstenpand, grote Bibliotheek, Theater Zuidplein, en evenementen- en congrescentrum Ahoy te vinden.
Op nog geen 2 minuten lopen bevinden zich een kleine supermarkt en een uitgebreide groenten- en fruitzaak.
Afmetingen
Tuin (schatting) ca. 31,5 m²
Stenen berging ca. 11,95 m²
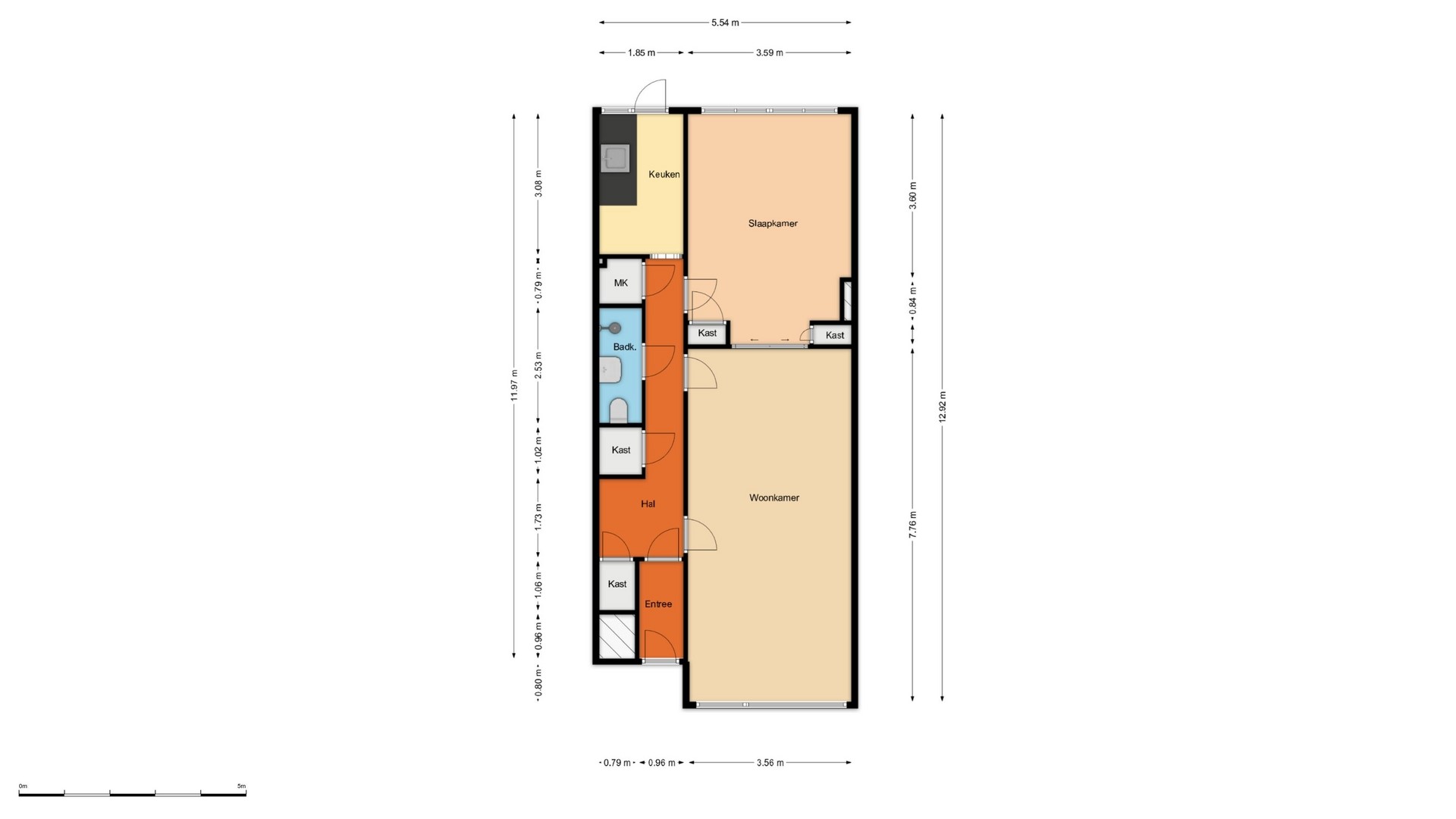
Totale woonoppervlakte ca. 69,8 m²
Bijzonderheden:
Eigen grond, bouwjaar 1937, (conform NEN2580), energielabel E (geldig tot 22-08-2033), oplevering in overleg, actieve VvE met maandelijkse bijdrage van ca. € 57,-, voorzien van kunststof kozijnen met dubbele beglazing, ouderdoms- en niet bewoners clausule van toepassing, er is een projectnotaris van toepassing.
De Meetinstructie is gebaseerd op de NEN2580. De Meetinstructie is bedoeld om een meer eenduidige manier van meten toe te passen voor het geven van een indicatie van de gebruiksoppervlakte. De Meetinstructie sluit verschillen in meetuitkomsten niet volledig uit, door bijvoorbeeld interpretatieverschillen, afrondingen of beperkingen bij het uitvoeren van de meting.
Alle verstrekte informatie moet beschouwd worden als een uitnodiging tot het doen van een bod of om in onderhandeling te treden. Er kunnen geen rechten worden ontleend aan deze woninginformatie.
Kenmerken
| Overdracht | |
|---|---|
| Referentienummer | 06543 |
| Vraagprijs | € 225.000,- k.k. |
| Servicekosten | € 57,- |
| Status | Verkocht |
| Aanvaarding | In overleg |
| Aangeboden sinds | Donderdag 19 maart 2026 |
| Laatste wijziging | Zaterdag 25 april 2026 |
| Bouw | |
|---|---|
| Type object | Appartement, benedenwoning |
| Woonlaag | 1e woonlaag |
| Soort bouw | Bestaande bouw |
| Bouwperiode | 1937 |
| Dakbedekking | Bitumen |
| Type dak | Platdak |
| Isolatievormen | Dubbel glas |
| Oppervlaktes en inhoud | |
|---|---|
| Woonoppervlakte | 70 m² |
| Woonkameroppervlakte | 27,63 m² |
| Keukenoppervlakte | 5,7 m² |
| Inhoud | 265 m³ |
| Indeling | |
|---|---|
| Aantal bouwlagen | 1 |
| Aantal kamers | 2 (waarvan 1 slaapkamer) |
| Aantal badkamers | 1 |
| Locatie | |
|---|---|
| Ligging | Dichtbij openbaar vervoer In woonwijk Nabij school Nabij snelweg |
| Tuin | |
|---|---|
| Type | Achtertuin |
| Hoofdtuin | Ja |
| Oriëntering | Noorden |
| Staat | Normaal |
| Uitrusting | |
|---|---|
| Warm water | Elektrische boiler |
| Verwarmingssysteem | Gaskachels |
| Badkamervoorzieningen | Douche Toilet Wastafel |
| Tuin aanwezig | Ja |
| Heeft schuur/berging | Ja |
| Vereniging van Eigenaren | |
|---|---|
| Ingeschreven bij de KvK | Ja |
| Jaarlijkse vergadering | Ja |
| Periodieke bijdrage | Ja |
| Reservefonds | Ja |
| Meer jaren onderhoudsplan | Ja |
| Onderhoudsverwachting | Ja |
| Opstal verzekering | Ja |
| Kadastrale gegevens | |
|---|---|
| Kadastrale aanduiding | Charlois H 3363 |
| Omvang | Appartementsrecht of complex |
| Eigendomsituatie | Eigen grond |
| Indexnummer | 5 |