Beschrijving

Royale benedenwoning met een ruime tuin en een grote stenen berging. De woning heeft een grote woonkamer en een ruime slaapkamer.

De ligging is uitstekend! Het Hart van Zuid, met onder andere winkel-, bus- en metrostation Zuidplein bevindt zich op een paar minuten loopafstand. Met de metro ben je in 10 minuten in het Centrum van Rotterdam.

Diverse uitvalswegen, waaronder de A15 en A29, bevinden zich vlakbij. Het gebied rond Winkelcentrum Zuidplein heeft een trendy metamorfose ondergaan en is volop in ontwikkeling. Ook zijn hier veel restaurantjes, een zwembad met Olympische afmetingen, het Kunstenpand, grote Bibliotheek, Theater Zuidplein, en evenementen- en congrescentrum Ahoy te vinden.

Op nog geen 2 minuten lopen bevinden zich een kleine supermarkt en een uitgebreide groenten- en fruitzaak. 

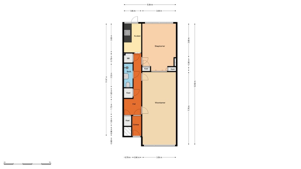
Afmetingen 
Tuin (schatting) ca. 31,5 m²
Stenen berging ca. 11,95 m²
Totale woonoppervlakte ca. 69,8 m²

Bijzonderheden:
Eigen grond, bouwjaar 1937, (conform NEN2580), energielabel E  (geldig tot 22-08-2033), oplevering in overleg, actieve VvE met maandelijkse bijdrage van ca. € 57,-, voorzien van kunststof kozijnen met dubbele beglazing, ouderdoms- en niet bewoners clausule van toepassing, er is een projectnotaris van toepassing.

De Meetinstructie is gebaseerd op de NEN2580. De Meetinstructie is bedoeld om een meer eenduidige manier van meten toe te passen voor het geven van een indicatie van de gebruiksoppervlakte. De Meetinstructie sluit verschillen in meetuitkomsten niet volledig uit, door bijvoorbeeld interpretatieverschillen, afrondingen of beperkingen bij het uitvoeren van de meting.

Alle verstrekte informatie moet beschouwd worden als een uitnodiging tot het doen van een bod of om in onderhandeling te treden. Er kunnen geen rechten worden ontleend aan deze woninginformatie.

Kenmerken