Nieuw in verkoop
Beschrijving
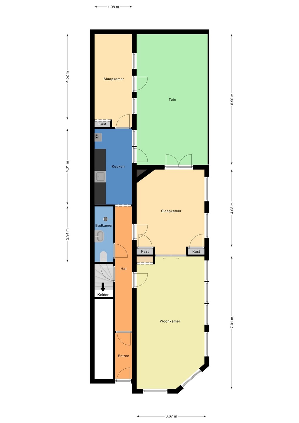
Deze ruime benedenwoning met drie kamers, een zonnige tuin en een kelder is een geweldige kans voor wie op zoek is naar een woning die volledig naar eigen smaak gemoderniseerd kan worden. Dankzij de hoekligging geniet de woning van extra lichtinval en een prettige, praktische indeling. Een ideaal huis voor liefhebbers van ruimte, licht en potentie!De ligging is zonder twijfel uitstekend. De woning bevindt zich in een prettige woonomgeving met alle dagelijkse voorzieningen binnen handbereik. Winkels, supermarkten, scholen en openbaar vervoer zijn op korte afstand gelegen. Daarnaast is de woning gunstig gesitueerd ten opzichte van uitvalswegen, waardoor je snel onderweg bent richting het centrum van Rotterdam of andere delen van de stad. Een fijne combinatie van rustig wonen en goede bereikbaarheid.
Indeling
De woonkamer is heerlijk licht door de grote raampartijen aan zowel de voor- als zijkant. De centrale ligging van de keuken is bijzonder praktisch en extra leuk is dat deze direct toegang biedt tot de achtertuin. De woning is echt tuingericht: niet alleen vanuit de keuken, maar ook vanuit de achterkamer en één van de slaapkamers stap je zo de tuin in. Dit zorgt voor een fijn binnen-buiten gevoel.
De woning beschikt over twee slaapkamers, beide gelegen aan de tuinzijde, wat zorgt voor rust en comfort. De achtertuin op het westen biedt volop mogelijkheden om een heerlijke buitenplek te creëren waar je tot in de avond van de zon kunt genieten.
Daarnaast is er een badkamer voorzien van een douche, toilet en wastafel en een praktische kelder voor extra opslagruimte.
Kortom: een woning met veel licht, een fijne indeling en volop kansen om er jouw droomhuis van te maken!
Bijzonderheden
Eigen grond, bouwjaar 1927, verwarming en warm water middels CV-combiketel, prachtig glas-in-lood aanwezig. Het appartement wordt verkocht onder voorbehoud van splitsing, de VvE zal hierbij opgericht worden. Oplevering in overleg.
De gegeven informatie is met zorgvuldigheid opgesteld, aan de juistheid kunnen echter geen rechten worden ontleend. Alle verstrekte informatie moet beschouwd worden als een uitnodiging tot het doen van een aanbod of om in onderhandeling te treden.
Kenmerken
| Overdracht | |
|---|---|
| Referentienummer | 06532 |
| Vraagprijs | € 225.000,- k.k. |
| Status | Nieuw in verkoop |
| Aanvaarding | In overleg |
| Aangeboden sinds | Dinsdag 24 februari 2026 |
| Bouw | |
|---|---|
| Type object | Appartement, benedenwoning |
| Woonlaag | 1e woonlaag |
| Soort bouw | Bestaande bouw |
| Bouwperiode | 1927 |
| Dakbedekking | Dakpannen |
| Type dak | Zadeldak |
| Oppervlaktes en inhoud | |
|---|---|
| Woonoppervlakte | 74,5 m² |
| Woonkameroppervlakte | 25,73 m² |
| Keukenoppervlakte | 7,94 m² |
| Inhoud | 286 m³ |
| Oppervlakte overige inpandige ruimten | 12 m² |
| Indeling | |
|---|---|
| Aantal bouwlagen | 1 (en 1 kelder) |
| Aantal kamers | 3 (waarvan 2 slaapkamers) |
| Aantal badkamers | 1 |
| Locatie | |
|---|---|
| Ligging | Aan rustige weg Aan water Dichtbij openbaar vervoer In woonwijk Nabij school Nabij snelweg Open ligging |
| Tuin | |
|---|---|
| Type | Achtertuin |
| Hoofdtuin | Ja |
| Oriëntering | West |
| Heeft een achterom | Ja |
| Staat | Dient nog te worden aangelegd. |
| CV ketel | |
|---|---|
| Warmtebron | Gas |
| Combiketel | Ja |
| Eigendom | Eigendom |
| Uitrusting | |
|---|---|
| Warm water | CV-ketel |
| Verwarmingssysteem | Centrale verwarming |
| Badkamervoorzieningen | Inloopdouche Toilet Wastafel |
| Tuin aanwezig | Ja |
| Kadastrale gegevens | |
|---|---|
| Kadastrale aanduiding | Charlois F 2345 |
| Omvang | Appartementsrecht of complex |
| Eigendomsituatie | Eigen grond |