Verkocht onder voorbehoud
Verkocht onder voorbehoud: Noorderhavenkade 154A03, 3038 XV Rotterdam
€ 359.500,- k.k.
Beschrijving
Een ruime bovenwoning met twee balkons en vrij uitzicht op het park aan de Noorderhavenkade. De woning is verdeeld over de derde en vierde halve verdieping en is erg ruim van opzet.Geweldige ligging in de geliefde wijk Blijdorp!
Deze woning bevindt zich in de populaire Rotterdamse wijk Blijdorp. De buurt staat bekend om zijn groene omgeving, gezellige sfeer en uitstekende bereikbaarheid. U woont hier vlakbij winkels, scholen en restaurants, en het centrum van Rotterdam is eenvoudig te bereiken met het openbaar vervoer of de fiets. Daarnaast zijn de uitvalswegen in de buurt, wat zorgt voor een perfecte combinatie van rust en stadse gemakken. Direct uitzicht op het park!
Indeling
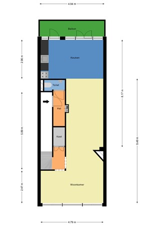
Begane grond
Open portiek met toegang tot de voordeuren.
Derde verdieping
Via de entree komt u in de hal met meterkast en toiletruimte. De toiletruimte is in 2010 vernieuwd en vergroot, uitgevoerd met witte wandtegels, gele accenten en een antracietkleurige tegelvloer. Er is een zwevend closet geplaatst. De meterkast is eveneens gemoderniseerd.
Vanuit de hal bereikt u de lichte doorzonwoonkamer met een zit- en eetgedeelte.
Aan de voorzijde bevindt zich de sfeervolle woonkamer met een prachtig, vrij uitzicht over het park.
Aan de achterzijde vindt u de eetkamer met open keuken. Oorspronkelijk bestond deze verdieping uit drie kamers (voor-, tussen- en achterkamer), wat zorgt voor een ruimtelijk gevoel. Dankzij de grote raampartijen valt er veel daglicht binnen in zowel woon- als eetgedeelte.
Via de openslaande deuren stapt u zo het balkon op, gelegen op het noordoosten, een heerlijke plek om van de ochtend- en middagzon te genieten.
De nette keuken is voorzien van onder- en bovenkasten, een los gasfornuis (de oven is stuk) met afzuigkap, een losse koel-vriescombinatie en een ingebouwde vaatwasser. Vanuit de keuken is ook er toegang het balkon.
De twee balkons maken het woongenot compleet, ideaal om te ontspannen en buiten te zijn.
Via de open trap in de woonkamer bereikt u de vierde verdieping. In de open hal naar de trap is een ruime bergkast aanwezig.
Vierde verdieping
Op deze verdieping biedt de overloop toegang tot een royale slaapkamer en de badkamer. Ook bevindt zich hier de trap die naar het dak toe leidt. Op het dak is er de mogelijkheid voor het aanleggen van een dakterras. (de VVE is hiermee akkoord). De lichtkoepel zorgt voor veel lichtinval.
De ruime slaapkamer heeft veel lichtinval en beschikt over een vaste kast. Vanuit de slaapkamer geven openslaande deuren toegang tot het tweede balkon, gelegen op het zuid-westen. Door de ligging van beide balkons is er altijd een plekje in de zon of schaduw te vinden.
De moderne badkamer is in 2019 vernieuwd en voorzien van een ruime, halfronde, glazen douchecabine, wastafelmeubel met spiegelkast en de aansluitingen voor de wasmachine. De afwerking bestaat uit grote witte wandtegels en grijze vloertegels. Een lichtkoepel in het dak zorgt voor extra daglicht. Zowel in de lichtkoepel boven de trap als in de lichtkoepel boven de douchecabine is dubbele glas geplaatst in 2016.
Afmetingen
Totale woonoppervlakte ca. 78m²
Balkons ca. 9,5 m²
Bijzonderheden
Eigen grond, bouwjaar 1935, beschermd stadsgezicht, energielabel C (geldig tot 04-08-2035), houten en aluminium kozijnen met dubbel glas, verwarming en warm water middels CV-ketel (Remeha Avanta, 2013), actieve VvE met een maandelijkse bijdrage van €156,- (vanaf 01-2026 €175,-), Oplevering in overleg.
U bent van harte welkom om deze fijne bovenwoning midden in de populaire wijk Blijdorp te bezichtigen! Wij nodigen u van harte uit om een bezichtiging in te plannen. Neem contact met ons op voor het maken van een afspraak.
De gegeven informatie is met zorgvuldigheid opgesteld, aan de juistheid kunnen echter geen rechten worden ontleend. Alle verstrekte informatie moet beschouwd worden als een uitnodiging tot het doen van een aanbod of om in onderhandeling te treden.
Kenmerken
| Overdracht | |
|---|---|
| Referentienummer | 06470 |
| Vraagprijs | € 359.500,- k.k. |
| Servicekosten | € 156,- |
| Status | Verkocht onder voorbehoud |
| Aanvaarding | In overleg |
| Aangeboden sinds | Donderdag 4 december 2025 |
| Laatste wijziging | Maandag 29 december 2025 |
| Bouw | |
|---|---|
| Type object | Appartement, portiekwoning |
| Woonlaag | 3e woonlaag |
| Soort bouw | Bestaande bouw |
| Bouwperiode | 1935 |
| Dakbedekking | Bitumen |
| Type dak | Platdak |
| Isolatievormen | Dubbel glas |
| Oppervlaktes en inhoud | |
|---|---|
| Woonoppervlakte | 78 m² |
| Keukenoppervlakte | 14,62 m² |
| Inhoud | 248 m³ |
| Oppervlakte gebouwgebonden buitenruimte | 9,5 m² |
| Balkonoppervlakte | 7,33 m² |
| Indeling | |
|---|---|
| Aantal bouwlagen | 2 |
| Aantal kamers | 2 (waarvan 1 slaapkamer) |
| Aantal badkamers | 1 (en 1 apart toilet) |
| Locatie | |
|---|---|
| Ligging | Aan park Aan rustige weg Dichtbij openbaar vervoer In woonwijk Nabij school Nabij snelweg |
| Energieverbruik | |
|---|---|
| Energielabel | C |
| CV ketel | |
|---|---|
| CV ketel | Remeha Avanta |
| Warmtebron | Gas |
| Bouwjaar | 2013 |
| Combiketel | Ja |
| Eigendom | Eigendom |
| Uitrusting | |
|---|---|
| Warm water | CV-ketel |
| Verwarmingssysteem | Centrale verwarming |
| Badkamervoorzieningen | Douche Wasmachineaansluiting Wastafel Wastafelmeubel |
| Heeft een balkon | Ja |
| Vereniging van Eigenaren | |
|---|---|
| Ingeschreven bij de KvK | Ja |
| Jaarlijkse vergadering | Ja |
| Periodieke bijdrage | Ja |
| Reservefonds | Ja |
| Meer jaren onderhoudsplan | Ja |
| Onderhoudsverwachting | Ja |
| Opstal verzekering | Ja |
| Kadastrale gegevens | |
|---|---|
| Kadastrale aanduiding | Rotterdam AB 2313 |
| Omvang | Appartementsrecht of complex |
| Eigendomsituatie | Eigen grond |