Nieuw in verkoop
Beschrijving
Deze prachtige benedenwoning van maar liefst 102,5m2 aan de gezellige Dresselhuysstraat is een echte parel! Hier komen de charme van de jaren ’30 en het comfort van nu op een unieke manier samen. Met een royale indeling over de begane grond en het souterrain én een fantastische achtertuin (12 m diep), is dit een plek waar je direct verliefd op wordt.Zodra je binnenstapt via het authentieke tochtportaal, word je verwelkomd door schitterende glas-in-looddetails en een karakteristieke granitovloer. Vanaf dat eerste moment voel je het al: dit is niet zomaar een huis, dit is een thuis vol sfeer, warmte en karakter.
Geweldige ligging in de geliefde wijk Blijdorp!
Hoe fijn is het om de deur uit te stappen en een kop koffie te kunnen drinken bij de meest hippe koffiecafés in de buurt, zoals het Statencafe of Sajoer om de hoek. Ook voor een gezellige lunch of diner is ruime keus, denk aan zaken als Café Pompette, Brasserie Tines en het Vroesenpaviljoen midden in het Vroesenpark.
De buurt staat bekend om zijn groene omgeving, gezellige sfeer en uitstekende bereikbaarheid. U woont hier vlakbij winkels, scholen en restaurants, en het Centrum van Rotterdam is eenvoudig te bereiken met het openbaar vervoer of de fiets (5 minuten fietsafstand). Kortom, het stadse leven is binnen handbereik!
Daarnaast zijn zowel de snelweg (A13) als Rotterdam centraal station in de buurt, wat zorgt voor een perfecte combinatie van rust en stadse gemakken.
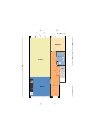
Indeling
Voordeur met toegang tot het prachtige tochtportaal met authentieke jaren ’30 tegels, granitovloer en glas-in-looddeur. Er is een ook een glas-in-lood zij-/ en bovenraam, wat zorgt voor veel lichtinval. Het tochtportaal biedt toegang tot de hal met een vaste kast en vanuit daar is er toegang tot de woonkamer, de slaapkamer, de badkamer en de slaapkamer in het souterrain.
De royale doorzon woonkamer is een heerlijke plek om te leven. Dankzij de grote raampartijen baadt de ruimte in het licht, terwijl de strak gestuukte wanden en warme houtlook laminaatvloer zorgen voor een eigentijdse uitstraling.
De open keuken aan de voorzijde is stijlvol uitgevoerd in hoogglans wit met een lichtgrijs werkblad en van alle gemakken voorzien, perfect voor lange avonden koken en gezellig tafelen.
Via de openslaande deuren stap je zo de diepe, fraai aangelegde achtertuin in. Gelegen op het oosten geniet je op het verhoogde terras van de ochtendzon en verder in de tuin vind je altijd wel een fijn plekje, of je nu wilt ontspannen, tuinieren of borrelen met vrienden. De tuin is echt een verlengstuk van je woonruimte.
Door de diepte is er veel zon in de tuin. Achter in de tuin is er een praktische houten berging met doorgang naar het pad erachter. De berging heeft ruimte voor fietsen, tuinspullen of kinderspeelgoed.
De woning beschikt over een fijne slaapkamer aan de tuinzijde, met toegang tot het terras en uitzicht op de tuin. Het is een ideale rustige werkplek, logeer- of kinderkamer.
De badkamer is praktisch ingedeeld en voorzien van een douchehoek, toilet en een wastafelmeubel met lades. De wanden zijn volledig betegeld met witte wandtegels en de vloertegels zijn antraciet.
Souterrain
Een verrassend ruime en veelzijdige verdieping die volop mogelijkheden biedt!
Hier bevindt zich een sfeervol slaapgedeelte. Dankzij de ligging in het souterrain profiteer je van een aangenaam koel klimaat, wat vooral in de warmere maanden een groot pluspunt is. Bovendien zorgt de beschutte ligging voor extra stilte en privacy. Het aanwezige raam aan de tuinzijde laat prettig daglicht binnen en zorgt voor natuurlijke ventilatie.
De wanden zijn strak en netjes afgewerkt en de inbouwspots creëren een warme, uitnodigende sfeer. De mooie, lichte vloerbedekking draagt bij aan het comfort en geeft de ruimte een verzorgde uitstraling.
Daarnaast is er een praktische was- en bergruimte aanwezig, ideaal voor extra opslag.
Afmetingen
Begane grond ca. 72,5 m2
Souterrain ca. 30 m2
Totale woonoppervlakte ca. 102,5 m2
Houten schuur ca. 2,5 m2
Tuin ca. 12m diep
Bijzonderheden
Eigen grond, bouwjaar 1936, energielabel B, verwarming en warm water middels CV ketel, houten kozijnen met dubbel glas (schilderwerk kozijnen binnenzijde 2021), actieve VvE met maandelijkse bijdrage van €157,38. Oplevering in overleg.
Bezichtiging
U bent van harte welkom om deze sfeervolle benedenwoning met fijne achtertuin te komen bezichtigen!
De gegeven informatie is met zorgvuldigheid opgesteld, aan de juistheid kunnen echter geen rechten worden ontleend. Alle verstrekte informatie moet beschouwd worden als een uitnodiging tot het doen van een aanbod of om in onderhandeling te treden.
Kenmerken
| Overdracht | |
|---|---|
| Referentienummer | 06510 |
| Vraagprijs | € 495.000,- k.k. |
| Servicekosten | € 157,38 |
| Status | Nieuw in verkoop |
| Aanvaarding | In overleg |
| Aangeboden sinds | Donderdag 2 april 2026 |
| Bouw | |
|---|---|
| Type object | Appartement, benedenwoning |
| Woonlaag | 1e woonlaag |
| Soort bouw | Bestaande bouw |
| Bouwperiode | 1936 |
| Dakbedekking | Bitumen |
| Type dak | Platdak |
| Isolatievormen | Dubbel glas Muurisolatie |
| Oppervlaktes en inhoud | |
|---|---|
| Woonoppervlakte | 102,5 m² |
| Woonkameroppervlakte | 44,27 m² |
| Keukenoppervlakte | 11,7 m² |
| Inhoud | 310 m³ |
| Oppervlakte externe bergruimte | 2,5 m² |
| Oppervlakte gebouwgebonden buitenruimte | 16,5 m² |
| Indeling | |
|---|---|
| Aantal bouwlagen | 1 (en 1 kelder) |
| Aantal kamers | 3 (waarvan 2 slaapkamers) |
| Aantal badkamers | 1 |
| Locatie | |
|---|---|
| Ligging | Aan rustige weg Dichtbij openbaar vervoer In woonwijk Nabij school Nabij snelweg |
| Tuin | |
|---|---|
| Type | Achtertuin |
| Hoofdtuin | Ja |
| Oriëntering | Oosten |
| Staat | Normaal |
| Energieverbruik | |
|---|---|
| Energielabel | B |
| CV ketel | |
|---|---|
| Warmtebron | Gas |
| Combiketel | Ja |
| Eigendom | Eigendom |
| Uitrusting | |
|---|---|
| Warm water | CV-ketel |
| Verwarmingssysteem | Centrale verwarming |
| Badkamervoorzieningen | Douche Toilet Wastafel Wastafelmeubel |
| Tuin aanwezig | Ja |
| Heeft schuur/berging | Ja |
| Vereniging van Eigenaren | |
|---|---|
| Ingeschreven bij de KvK | Ja |
| Jaarlijkse vergadering | Ja |
| Periodieke bijdrage | Ja |
| Reservefonds | Ja |
| Meer jaren onderhoudsplan | Ja |
| Onderhoudsverwachting | Ja |
| Opstal verzekering | Ja |
| Kadastrale gegevens | |
|---|---|
| Kadastrale aanduiding | Rotterdam Z 4016 |
| Omvang | Appartementsrecht of complex |
| Eigendomsituatie | Eigen grond |
| Indexnummer | 1 |