Nieuw in verkoop
Beschrijving
Op de 30e verdieping van de iconische Schielandtoren vind je dit royale hoekappartement van maar liefst 97 m², met een werkelijk adembenemend, weids uitzicht. Deze energiezuinige woning heeft energielabel A! Deze hoogwaardige, energiezuinige woning heeft een energielabel A en is volledig gasloos! Dit zorgt niet alleen voor duurzaam wonen, maar ook voor bescherming tegen schommelingen in de gasprijzen.De ligging is uitstekend. De ligging is simpelweg perfect. Midden in het centrum van Rotterdam, direct aan de Coolsingel en naast de Koopgoot. Alles wat je nodig hebt ligt letterlijk aan je voeten: winkels, restaurants, theaters en hotspots. Ondanks de centrale ligging biedt het appartement een verrassend rustige en vredige sfeer, een oase midden in een levendige en energieke stad.
Ook qua bereikbaarheid zit je hier uitstekend. Openbaar vervoer, uitvalswegen en het Centraal Station zijn allemaal dichtbij. Binnen no-time ben je waar je moet zijn
of dat nu in de stad is of daarbuiten.
Wonen op hoog niveau, midden in het bruisende hart van Rotterdam!
Indeling
Begane grond
De Schielandtoren is een markant gebouw met een internationale uitstraling en een prominente ligging in het centrum van Rotterdam.
De entree is verzorgd en afgesloten, voorzien van een intercominstallatie en brievenbussen. Het complex beschikt over twee liften, wat zorgt voor een comfortabele en efficiënte toegang tot de appartementen.
30e verdieping
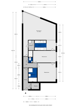
Op de dertigste verdieping bevindt zich het appartement. De entree bestaat uit een tochtportaal met vaste kast, geschikt als garderobe, met aansluitend de hal. Vanuit de hal zijn alle vertrekken toegankelijk, waaronder de woonkamer, twee slaapkamers, de badkamer, het separate toilet en de berging.
De royale woonkamer kenmerkt zich door de hoekligging en de grote raampartijen, waardoor er sprake is van veel lichtinval en een weids uitzicht over de stad. De ruimte is strak afgewerkt met gestuukte wanden en plafonds en voorzien van een houten vloer. De indeling biedt voldoende ruimte voor zowel een zit- als eetgedeelte.
De keuken staat in open verbinding met de woonkamer en is uitgevoerd in een praktische opstelling met twee rechte delen. De keuken beschikt over rode kastfronten en een donkergrijs werkblad en is voorzien van diverse inbouwapparatuur, waaronder een elektrische kookplaat, afzuigkap, oven, combimagnetron, koelkast, vaatwasser en een dubbele spoelbak. Daarnaast is er voldoende bergruimte in de boven- en onderkasten.
De inpandige berging is zowel via de keuken als via de hal bereikbaar en biedt extra opslagmogelijkheden.
Het appartement beschikt over twee slaapkamers. Beide kamers zijn van goed formaat, voorzien van dezelfde afwerking als de woonkamer en beschikken over een houten vloer en gestuukte wanden. Ook hier weer prachtig uitzicht!
De badkamer is functioneel ingericht en afgewerkt met witte wandtegels en lichtgrijze vloertegels. De ruimte is voorzien van een douche met glazen wand, een wastafel met spiegel en een ligbad. Het separate toilet bevindt zich in de hal.
Tot slot is er een eigen berging op de achtste verdieping.
Parkeerplaats
Parkeren is mogelijk in de privégarage onder het gebouw voor bewoners van de Schielandtoren
Afmetingen
Totale woonoppervlakte ca. 79 m²
Berging ca. 7,4 m²
Bijzonderheden
Eigen grond, bouwjaar 1996, energielabel A, verwarming en warmwater geschiedt middels het warmtenet van Rotterdam (stadsverwarming), volledige isolatie, actieve VvE met een maandelijkse bijdrage van ca. € 254,-. Oplevering in overleg.
Bezichtigingsafspraak
Maak direct een afspraak om dit prachtige appartement op de 30e verdieping van de iconische Schielandtoren met een werkelijk adembenemend, weids uitzicht te bezichtigen.
De gegeven informatie is met zorgvuldigheid opgesteld, aan de juistheid kunnen echter geen rechten worden ontleend. Alle verstrekte informatie moet beschouwd worden als een uitnodiging tot het doen van een aanbod of om in onderhandeling te treden.
Engelse versie
On the 30th floor of the iconic Schieland Tower, you will find this spacious corner apartment of no less than 97 m², boasting a truly breathtaking, panoramic view. This high-end, energy-efficient residence has an A energy label and is completely gas-free! Ensuring not only sustainable living, but also protection from fluctuations in gas prices.
The location is excellen, simply perfect. Situated right in the heart of Rotterdam city center, directly on the Coolsingel and next to the Koopgoot. Everything you need is literally at your feet: shops, restaurants, theaters, and hotspots. Despite its central location, the apartment offers a surprisingly quiet and peaceful atmosphere, an oasis in the middle of a vibrant and energetic city.
Accessibility is also outstanding. Public transport, major roads, and Central Station are all nearby. You can reach your destination in no time—whether within the city or beyond.
Living at a high level in the vibrant heart of Rotterdam!
Layout
Ground floor
The Schieland Tower is a striking building with an international appearance and a prominent location in the center of Rotterdam.
The entrance is well-maintained and secured, equipped with an intercom system and mailboxes. The complex features two elevators, ensuring comfortable and efficient access to the apartments.
30th floor
The apartment is located on the thirtieth floor. The entrance consists of a vestibule with a built-in closet suitable as a wardrobe, leading into the hallway. From the hallway, all rooms are accessible, including the living room, two bedrooms, the bathroom, a separate toilet, and a storage room.
The spacious living room is characterized by its corner position and large windows, allowing for plenty of natural light and wide-reaching views over the city. The space is neatly finished with plastered walls and ceilings and features a wooden floor. The layout offers ample room for both a seating and dining area.
The kitchen is open to the living room and arranged in a practical layout with two straight units. It features red cabinet fronts and a dark gray countertop and is equipped with various built-in appliances, including an electric cooktop, extractor hood, oven, combination microwave, refrigerator, dishwasher, and a double sink.
There is also plenty of storage space in the upper and lower cabinets.
The internal storage room is accessible from both the kitchen and the hallway and offers additional storage possibilities.
The apartment has two bedrooms. Both rooms are well-sized, finished in the same style as the living room, and feature wooden floors and plastered walls. Once again, they offer beautiful views.
The bathroom is functionally designed and finished with white wall tiles and light gray floor tiles. It is equipped with a shower with a glass partition, a sink with mirror, and a bathtub. The separate toilet is located in the hallway.
Finally, there is a private storage room on the eighth floor.
Parking
Parking is available in the private garage beneath the building for Residents of the Schieland Tower.
Dimensions
Total living area approx. 79 m²
Storage approx. 7.4 m²
Details
Freehold property, built in 1996, energy label A, heating and hot water via the Rotterdam district heating network, fully insulated, active homeowners’ association with a monthly contribution of approximately €254,-. Completion in consultation.
Viewing appointment
Schedule a viewing today to visit this beautiful apartment on the 30th floor of the iconic Schieland Tower with its truly breathtaking, panoramic view.
The information provided has been compiled with care; however, no rights can be derived from its accuracy. All information should be regarded as an invitation to make an offer or to enter into negotiations.
Kenmerken
| Overdracht | |
|---|---|
| Referentienummer | 06541 |
| Vraagprijs | € 495.000,- k.k. |
| Servicekosten | € 254,- |
| Status | Nieuw in verkoop |
| Aanvaarding | In overleg |
| Aangeboden sinds | Donderdag 26 maart 2026 |
| Bouw | |
|---|---|
| Type object | Appartement, portiekflat |
| Soort bouw | Bestaande bouw |
| Bouwperiode | 1996 |
| Dakbedekking | Bitumen |
| Type dak | Platdak |
| Isolatievormen | Dubbel glas Vloerisolatie Volledig geïsoleerd |
| Oppervlaktes en inhoud | |
|---|---|
| Woonoppervlakte | 97 m² |
| Woonkameroppervlakte | 22,01 m² |
| Keukenoppervlakte | 6,33 m² |
| Inhoud | 302 m³ |
| Oppervlakte externe bergruimte | 7 m² |
| Indeling | |
|---|---|
| Aantal bouwlagen | 1 |
| Aantal kamers | 3 (waarvan 2 slaapkamers) |
| Aantal badkamers | 1 (en 1 apart toilet) |
| Locatie | |
|---|---|
| Ligging | Aan rustige weg Dichtbij openbaar vervoer In centrum Nabij school Vrij uitzicht |
| Energieverbruik | |
|---|---|
| Energielabel | A |
| Uitrusting | |
|---|---|
| Warm water | Stadsverwarming |
| Verwarmingssysteem | Stadsverwarming |
| Ventilatie methode | Mechanische ventilatie |
| Badkamervoorzieningen | Douche Ligbad Wastafel |
| Heeft schuur/berging | Ja |
| Heeft ventilatie | Ja |
| Vereniging van Eigenaren | |
|---|---|
| Ingeschreven bij de KvK | Ja |
| Jaarlijkse vergadering | Ja |
| Periodieke bijdrage | Ja |
| Reservefonds | Ja |
| Meer jaren onderhoudsplan | Ja |
| Onderhoudsverwachting | Ja |
| Opstal verzekering | Ja |
| Kadastrale gegevens | |
|---|---|
| Kadastrale aanduiding | Rotterdam AF 1479 |
| Omvang | Appartementsrecht of complex |
| Eigendomsituatie | Eigen grond |
| Indexnummer | 105 |