Nieuw in verkoop
Beschrijving
Deze keurig verzorgde en verrassend lichte 3-kamerwoning is gelegen op de eerste verdieping en beschikt over een praktische berging in de onderbouw. Dankzij de ligging in de breedte en de vele raampartijen aan zowel de voor- als achterzijde geniet u hier de hele dag van een prachtige lichtinval én van een uniek uitzicht over de tuinen en woonboten aan de overzijde. Een heerlijke plek om thuis te komen!De woning is strak en verzorgd afgewerkt met een fraaie laminaatvloer met houtlook, strak gestukte wanden en plafonds, wat zorgt voor een moderne en rustige uitstraling.
Geweldige ligging in de geliefde wijk Blijdorp!
Hoe fijn is het om de deur uit te stappen en een kop koffie te kunnen drinken bij de meest hippe koffiecafés in de buurt, zoals het Statencafe of Sajoer. Ook voor een gezellige lunch of diner is ruime keus, denk aan zaken als La Pizza, Frère, Station Bergweg en het Vroesenpaviljoen midden in het Vroesenpark.
De buurt staat bekend om zijn groene omgeving, gezellige sfeer en uitstekende bereikbaarheid. U woont hier vlakbij winkels, scholen en restaurants en het centrum van Rotterdam is eenvoudig te bereiken met het openbaar vervoer of de fiets (10minuten fietsafstand). Kortom, het stadse leven is binnen handbereik! Daarnaast zijn zowel de snelweg (A20) als Rotterdam centraal station in de buurt, wat zorgt voor een perfecte combinatie van rust en stadse gemakken.
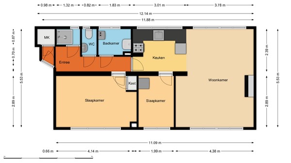
Indeling
Entree
Afgesloten portiek met bellentableau en brievenbussen. Portiek met trapopgang naar de eigen voordeur op de eerste verdieping.
Eerste verdieping
Via het tochtportaal met een ruime vaste kast (met meterkast) bereikt u de royale hal. Vanuit hier heeft u toegang tot alle vertrekken: de woonkamer, keuken, twee slaapkamers, het toilet, de doucheruimte en de aparte wasruimte.
De woonkamer is ruim opgezet en beschikt over grote raampartijen aan beide zijden. Aan de voorzijde kijkt u vrij uit over de Gordelweg en het Noorderkanaal, terwijl u aan de achterzijde uitzicht heeft op de groene binnentuinen. De overvloedige lichtinval zorgt voor een fijne, open sfeer. Er is volop ruimte voor zowel een comfortabele zithoek als een gezellige eethoek.
De halfopen keuken is aan de achterzijde van de woning gesitueerd en uitgevoerd in een praktische U-opstelling. Het geheel is stijlvol afgewerkt met een grijs werkblad, witte keukenkasten en zwarte handgrepen. De keuken is voorzien van diverse inbouwapparatuur, waaronder een 4-pits gaskookplaat, afzuigkap en inbouwoven en biedt voldoende kastruimte.
Aan de voorzijde bevinden zich twee slaapkamers. De royale hoofdslaapkamer beschikt over grote ramen met een leuk uitzicht en biedt ruimte aan een tweepersoonsbed en een grote kledingkast.
De tweede kamer wordt momenteel gebruikt als waskamer (de droger is hier gesitueerd), maar is dankzij de fijne afmetingen uitstekend geschikt als kinder-, werk- of logeerkamer.
Beide slaapkamers zijn net als de rest van de woning, strak en netjes afgewerkt.
De doucheruimte is volledig betegeld en voorzien van een douche en handdoekenradiator. De combinatie van grote witte wandtegels en een antracietkleurige vloer geeft de ruimte een frisse uitstraling. Daarnaast is er een aparte ruimte met een wastafelmeubel, waar ook de cv-ketel en de aansluiting voor de wasmachine zijn gesitueerd.
Kortom: een instapklare, lichte woning met een unieke ligging en uitzicht, waar comfort en sfeer perfect samenkomen. Absoluut een bezichtiging waard!
Afmetingen
berging ca. 6 m²
Totale woonoppervlakte ca. 63 m²
Bijzonderheden
Volle eigendom, bouwjaar 1937, energielabel C. verwarming en warm water middels cv-ketel (Kombi HRE 28/24A CW4), veel lichtinval, Vereniging van Eigenaren met een maandelijkse bijdrage VvE ca. €85,20. Oplevering in overleg.
Heeft u interesse om dit fantastische 3-kamerappartement te bezichtigen? U bent welkom voor een bezichtiging!
* De gegeven informatie is met zorgvuldigheid opgesteld, aan de juistheid kunnen echter geen rechten worden ontleend. Alle verstrekte informatie moet beschouwd worden als een uitnodiging tot het doen van een aanbod of om in onderhandeling te treden.
Kenmerken
| Overdracht | |
|---|---|
| Referentienummer | 06524 |
| Vraagprijs | € 325.000,- k.k. |
| Servicekosten | € 85,20 |
| Status | Nieuw in verkoop |
| Aanvaarding | In overleg |
| Aangeboden sinds | Maandag 9 februari 2026 |
| Bouw | |
|---|---|
| Type object | Appartement, portiekflat |
| Woonlaag | 1e woonlaag |
| Soort bouw | Bestaande bouw |
| Bouwperiode | 1937 |
| Dakbedekking | Bitumen |
| Type dak | Platdak |
| Isolatievormen | Dubbel glas |
| Oppervlaktes en inhoud | |
|---|---|
| Woonoppervlakte | 63 m² |
| Woonkameroppervlakte | 20,9 m² |
| Keukenoppervlakte | 7,17 m² |
| Inhoud | 235 m³ |
| Oppervlakte externe bergruimte | 6 m² |
| Indeling | |
|---|---|
| Aantal bouwlagen | 1 |
| Aantal kamers | 3 (waarvan 2 slaapkamers) |
| Aantal badkamers | 1 (en 1 apart toilet) |
| Locatie | |
|---|---|
| Ligging | Aan vaarwater Aan water Dichtbij openbaar vervoer In woonwijk Nabij school Nabij snelweg Vrij uitzicht |
| Energieverbruik | |
|---|---|
| Energielabel | C |
| CV ketel | |
|---|---|
| CV ketel | Kombi HRE 28/24A CW4 |
| Warmtebron | Gas |
| Combiketel | Ja |
| Eigendom | Eigendom |
| Uitrusting | |
|---|---|
| Warm water | CV-ketel |
| Verwarmingssysteem | Centrale verwarming |
| Badkamervoorzieningen | Douche Wastafel Wastafelmeubel |
| Heeft schuur/berging | Ja |
| Vereniging van Eigenaren | |
|---|---|
| Ingeschreven bij de KvK | Ja |
| Jaarlijkse vergadering | Ja |
| Periodieke bijdrage | Ja |
| Reservefonds | Ja |
| Meer jaren onderhoudsplan | Ja |
| Onderhoudsverwachting | Ja |
| Opstal verzekering | Ja |
| Kadastrale gegevens | |
|---|---|
| Kadastrale aanduiding | Rotterdam AB 2665 |
| Omvang | Appartementsrecht of complex |
| Eigendomsituatie | Eigen grond |