Beschrijving

Bent u op zoek naar een woning waar u helemaal uw eigen droomhuis van kunt maken? Dan is dit lichte dubbele bovenhuis precies wat u zoekt! Deze kluswoning is breed opgezet, beschikt over grote raampartijen aan zowel de voor- als achterzijde en heeft een heerlijk balkon op het zuiden. De woning ligt bovendien op een fantastische locatie in de populaire wijk Blijdorp, op korte afstand van het bruisende centrum van Rotterdam.

Dankzij de brede ligging en de vele ramen baadt de woning in natuurlijk licht. Met een woonoppervlakte van ca. 84,5 m² en een praktische indeling biedt deze woning volop mogelijkheden om een prachtige 3-kamerwoning te realiseren die volledig aansluit op uw eigen woonwensen.

Geweldige ligging
De ligging is uitstekend te noemen. In de directe omgeving vindt u gezellige koffietentjes, leuke winkels en een supermarkt voor de dagelijkse boodschappen. Op loopafstand ligt het recent gerenoveerde Van Maanenbad, waar u zowel binnen als buiten kunt zwemmen.
Ook qua bereikbaarheid zit u hier perfect. Het openbaar vervoer is uitstekend geregeld met onder andere Station Rotterdam Centraal en Metrostation Blijdorp in de buurt. Daarnaast bereikt u diverse uitvalswegen binnen enkele minuten.

Indeling
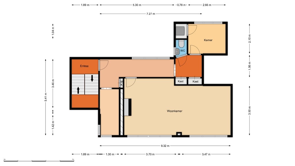
Begane grond
Eigen entree met trapopgang naar de voordeur op de eerste verdieping.

Eerste verdieping
Eigen trappenhuis met toegang naar de tweede en derde verdieping.

Tweede verdieping
U komt binnen in een ruime hal met veel licht dankzij het grote raam in de achtergevel. Vanuit de hal heeft u toegang tot de keuken, de woonkamer en de overloop naar het toilet en de slaapkamer.

De woonkamer aan de voorzijde is een prachtige, lichte ruimte met grote raampartijen. Aan de achterzijde bevindt zich een slaapkamer.

Derde verdieping
Via de overloop bereikt u de badkamer en de tweede slaapkamer. Vanuit deze slaapkamer stapt u zo het ruime balkon op het zuiden op, een heerlijke plek om van de zon te genieten.

De badkamer is voorzien van een ligbad en wastafel.

Afmetingen
•	Woonoppervlakte ca. 84,5 m²
•	Balkon ca. 5,3 m²

Bijzonderheden 
Eigen grond, bouwjaar 1934, kluswoning, rapport bouwkundige keuring aanwezig (recent), energielabel G, dubbel glas in kunststof kozijnen, actieve VvE met maandelijkse bijdrage van ca. €163,-. Oplevering in overleg.

Bezichtiging
Bent u klaar om deze lichte en ruime woning op een toplocatie naar uw eigen smaak te renoveren? U bent van harte welkom om dit 3-kamerappartement met zonnig balkon op het zuiden te komen bezichtigen! 

De gegeven informatie is met zorgvuldigheid opgesteld, aan de juistheid kunnen echter geen rechten worden ontleend. Alle verstrekte informatie moet beschouwd worden als een uitnodiging tot het doen van een aanbod of om in onderhandeling te treden.

Kenmerken