Beschrijving
        
Ruim, licht en netjes verzorgd vijfkamer appartement met maar liefst drie balkons gelegen in het geliefde en gewilde Blijdorp. 
De woning is breed en ruimtelijk opgezet, biedt veel lichtinval en aan de achterzijde kijk je uit op een groen park en de skyline van Rotterdam.
De ligging van de woning is uitstekend te noemen! 
In de straat en om de hoek bevinden zich diverse leuke eetcafés, winkels en een supermarkt voor de dagelijkse boodschappen. Op een zonnige dag is het ideaal vertoeven in het gezellige Vroesenpark of ga je voor een frisse duik naar het van Maanenbad. Als je de straat oversteekt kan je een work-out doen bij Fitnesscentrum Noord. Binnen no time reis je met openbaar vervoer (o.a. Randstad Rail Blijdorp of Centraal Station Rotterdam).
Met het Centraal Station en metro Blijdorp op loopafstand is de woning uitstekend bereikbaar met het OV en ook met de auto zit je vrijwel direct op de snelweg in de richting van Den Haag/Amsterdam en Utrecht.
Indeling
Begane grond 
Via het open portiek bereik je de voordeur op de eerste etage. Binnengekomen leidt de trap je naar de tweede verdieping, waar de woonverdieping zich bevindt.
Tweede verdieping 
De hal geeft toegang tot alle vertrekken. De royale woonkamer, voorheen een en suite, ademt sfeer en is erg licht. Hoewel de schuifdeuren er niet meer zijn, zijn de karakteristieke inbouwkasten nog altijd aanwezig, wat het 
geheel een authentieke uitstraling geeft. 
De ruimte is afgewerkt met een nette vloer en biedt volop mogelijkheden voor een gezellige zithoek en een riante eethoek.
Vanuit de woonkamer is er toegang tot het balkon aan de achterzijde. Dit fijne balkon is op het zuidoosten gelegen, waardoor het er heerlijk genieten is op de zonnige dagen. 
De moderne keuken is uitgevoerd in stijlvol zwart met RVS-details en voorzien van diverse inbouwapparatuur: een oven, een 5-pits gaskookplaat met RVS-afzuigkap, een koelkast, vriezer en vaatwasser. Dankzij het grote stolpraam valt er veel natuurlijk daglicht binnen, wat de keuken een prettige plek maakt om te koken en samen te komen. Vanuit de keuken is er toegang tot het balkon.
Daarnaast vind je op deze verdieping nog een ruime kamer die uitstekend dienst kan doen als werkkamer of extra slaapkamer. De kamer heeft via openslaande deuren toegang tot het balkon aan de voorzijde. Dit balkon heeft de ligging op het noordwesten.
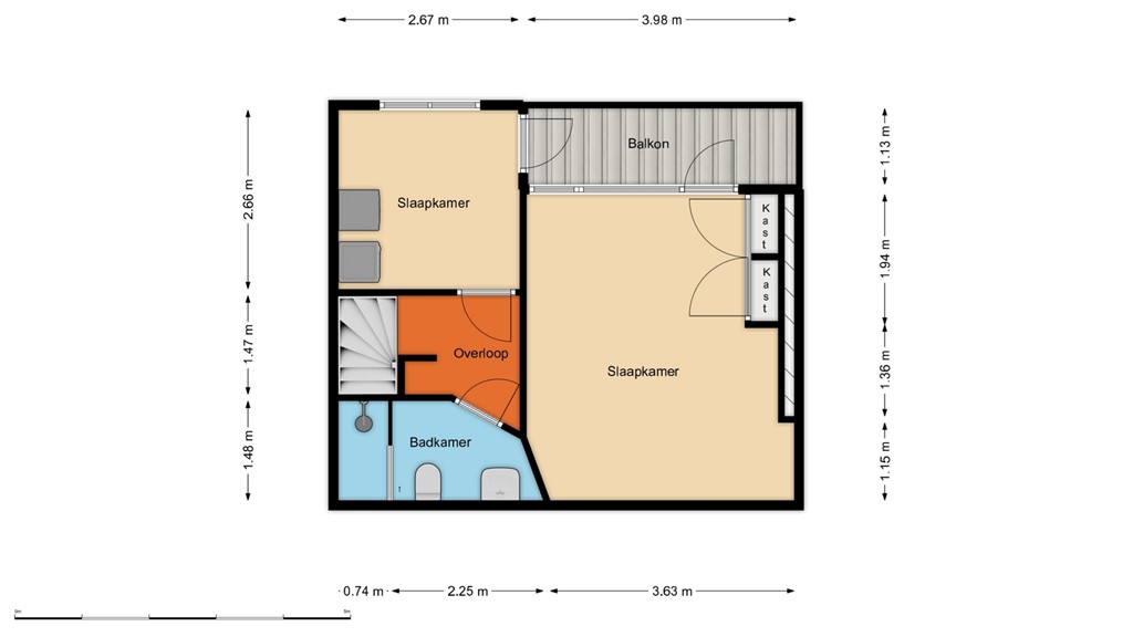
Vierde verdieping
Via de interne trap bereik je de vierde verdieping. De overloop geeft toegang tot twee ruime slaapkamers en de badkamer. Vanuit beide slaapkamers stap je zo het derde balkon op, een fijne buitenruimte waar je heerlijk kunt genieten van de zon en het uitzicht over de omgeving. Dit balkon is op het zuidoosten gelegen
De badkamer is modern en heeft antraciet vloertegels speels afgewerkt met witte wandtegels en in de douche speelse achterwand in teal. De badkamer is voorzien van een wastafel met meubel en een inloopdouche met glazen wand. De nis met daarin een spot boven het toilet is een leuk detail.
Afmetingen
Woonoppervlakte ca. 114 m² 
Balkons ca. 11m²
Bijzonderheden
Eigen grond, bouwjaar 1933, actieve VvE met maandelijkse bijdrage van € 186,42, verwarming en warm water middels CV-combiketel. Oplevering in overleg.
Bezichtiging
U bent van harte welkom om dit mooi verzorgde appartement met 3 balkons op een goede locatie in de populaire wijk Blijdorp te bezichtigen! 
* De gegeven informatie is met zorgvuldigheid opgesteld, aan de juistheid kunnen echter geen rechten worden ontleend. Alle verstrekte informatie moet beschouwd worden als een uitnodiging tot het doen van een aanbod of om in onderhandeling te treden.
         
     
        Plattegronden
            
                
                
                    176231902_stadhoudersweg_entree_entree_20250902_9a195d.jpg
                
             
            
                
                
                    176231902_stadhoudersweg_tweede_verdiepi_tweede_verdiepi_20250902_54750e.jpg
                
             
            
                
                
                    176231902_stadhoudersweg_derde_verdiepin_derde_verdiepin_20250902_334bff.jpg
                
             
            
                
                
                    176231902_stadhoudersweg_vierde_verdiep_vierde_verdiepi_20250902_33a60d.jpg