Beschrijving
Sfeervol bovenhuis van ca. 102m² met maar liefst twee balkons op het zuidwesten en een ruim dakterras. De woning is goed onderhouden en heeft een luxe badkamer en een luxe keuken, wat ervoor zorgt dat, in combinatie met, de moderne afwerking je in dit instaklare appartement verzekerd bent van optimaal wooncomfort en veel woonplezier. Energielabel C.
Blijdorp is een karakteristieke en rustige buurt aan de rand van het centrum. Om de hoek bevinden zich diverse leuke eetcafés, winkels en een supermarkt voor de dagelijkse boodschappen. Op een zonnige dag is het ideaal vertoeven in het gezellige Vroesenpark, of ga je voor een frisse duik naar het van Maanenbad.
Met het Centraal Station, tram en metro Blijdorp op loopafstand is de woning uitstekend bereikbaar met het OV en ook met de auto zit je vrijwel direct op de snelweg in de richting van Den Haag/Amsterdam en Utrecht.
Indeling
Via het open portiek bereikt u de eigen voordeur op de eerste verdieping. Een trap brengt u naar de woning op de tweede verdieping, waar direct bij binnenkomst duidelijk wordt: dit is een woning waar met zorg en oog voor detail is gewoond.
Tweede verdieping
De hal geeft toegang tot het toilet, de voor-/zijkamer, de keuken en de royale woonkamer. Zodra u de woonkamer binnenstapt, wordt u verwelkomd door een zee aan licht. Dankzij de grote raampartijen aan zowel de voor- als achterzijde geniet de ruimte van een prachtige daglichttoetreding. In combinatie met de lichte vloer en strak gestucte wanden ontstaat hier een frisse, moderne en bijzonder prettige sfeer.
De woonkamer bevindt zich aan de voorzijde en loopt over in de open keuken aan de achterzijde. Door de fijne diepte van de ruimte is er volop plek voor een grote eettafel, dé perfecte setting voor lange diners met vrienden en gezellige avonden met familie.
De witte keuken is praktisch én stijlvol ingericht. U beschikt over een oven, gaskookplaat en volop bergruimte. Het keukenblok staat in open verbinding met de woonkamer en biedt extra werkruimte én een gezellige plek om aan te zitten.
Daarnaast stap u vanuit de keuken zo het eerste balkon op, gelegen op het zuidwesten. Hier geniet u optimaal van de middag- en avondzon, een heerlijke plek te genieten van het buiten zijn.
Aan de voorzijde bevindt zich een extra kamer van goed formaat. Deze ruimte is ideaal als slaapkamer, werk- of studeerkamer en is keurig afgewerkt met strakke wanden, plafonds en een fraaie houten vloer.
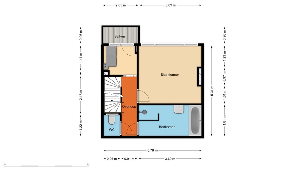
Vierde verdieping
Via de trap bereikt u de vierde verdieping. Hier vindt u twee kamers, een luxe badkamer en een vaste trap naar het schitterend aangelegde dakterras.
De hoofdslaapkamer is ruim opgezet en biedt moeiteloos plaats aan een groot tweepersoonsbed. Ook hier zorgen de houten vloer en strak gestucte wanden voor een verzorgde en rustige uitstraling. De tweede kamer heeft dezelfde nette afwerking en heeft de aansluitingen voor de wasmachine en
CV-opstelling en zou perfect als werkkamer kunnen dienen.
De badkamer is een netjes. De badkamer is afgewerkt met witte wandtegels, witte vloertegels en inbouwspots. Er is een ligbad, een wastafelmeubel met waskom en daarboven een grote spiegel.
En dan het absolute hoogtepunt: het prachtige dakterras. Afgewerkt met houten vlonders en met vrij uitzicht is dit een unieke buitenruimte waar u de hele dag van de zon kunt genieten. Of u nu wilt loungen, borrelen of uitgebreid dineren, hier ervaart u het ultieme buitenleven in alle rust en privacy.
Kortom: een perfect afgewerkte, lichte en ruime woning met meerdere buitenruimtes, helemaal klaar om nieuwe bewoners te verwelkomen!
Afmetingen
Tweede verdieping ca. 70 m²
Trap derde verdieping ca. 1 m²
Vierde verdieping ca. 31 m²
Totaal woonoppervlakte ca. 101,6 m²
Dakterras en balkons ca. 23 m²
Bijzonderheden
- Bouwjaar 1933
- Volledige eigendom
- Dakterras met vaste trap
- De woning is gelegen in gebied dat is aangewezen tot beschermd stadsgezicht
- Geheel voorzien van dubbel glas in kunststof kozijnen
- Verwarming en warm water middels CV-ketel (Vaillant Ecotec +5, 2017)
- Actieve VvE, bijdrage €115,-
- Energielabel C (geldig tot 12-02-2036)
- Oplevering in overleg
Bezichtigingsafspraak
Maak direct een afspraak om dit sfeervolle bovenhuis van ca. 102m² met twee balkons op het zuidwesten en een ruim dakterras in de gewilde wijk Blijdorp te bezichtigen!
* De gegeven informatie is met zorgvuldigheid opgesteld, aan de juistheid kunnen echter geen rechten worden ontleend. Alle verstrekte informatie moet beschouwd worden als een uitnodiging tot het doen van een aanbod of om in onderhandeling te treden.
Plattegronden
182237539_schieweg_212c2_trap_trap_20260216_9fe376.jpg
182237539_schieweg_212c2_tweede_verdiepi_tweede_verdiepi_20260216_6f9627.jpg
182237539_schieweg_212c2_vierde_verdiepi_vierde_verdiepi_20260216_ab21ee.jpg
182237539_schieweg_212c2_dakterras_dakterras_20260216_873dc8.jpg