Beschrijving

Prachtige en uitstekend onderhouden bovenwoning met twee balkons op het zonnige zuidwesten. De woning is verdeeld over de tweede en halve vierde verdieping en is tot in de puntjes verzorgd. Dankzij de luxe keuken, stijlvolle badkamer en de hoogwaardige afwerking, waaronder een prachtige houten vloer en strak gestucte wanden.

De woning ligt in het geliefde en karakteristieke Blijdorp, een rustige en groene wijk aan de rand van het centrum. Op loopafstand vindt u diverse gezellige eetcafés, winkels en een supermarkt voor de dagelijkse boodschappen. 

Op zonnige dagen is het heerlijk ontspannen in het nabijgelegen Vroesenpark of neemt u een verfrissende duik in het Van Maanenbad. Daarnaast is de bereikbaarheid uitstekend: Centraal Station, metro- en tramhalte Blijdorp liggen op korte afstand en met de auto rijdt u binnen enkele minuten de snelweg op richting Den Haag, Amsterdam en Utrecht.

Indeling
Begane grond
Via het open portiek bereikt u de trapopgang naar de eigen voordeur. Vanaf hier leidt een tweede trap naar de woning op de tweede verdieping.

Tweede verdieping
De hal biedt toegang tot de royale doorzon woonkamer met een ruim zit- en eetgedeelte, de keuken, een zijkamer, het toilet en de trap naar de bovenverdieping. De gehele verdieping is voorzien van een fraaie eikenhouten vloer en strak gestucte wanden en plafonds, wat zorgt voor een moderne en stijlvolle uitstraling.

De woonkamer is heerlijk licht door de grote raampartijen en voelt bijzonder ruim aan. Aan de achterzijde bevindt zich het gezellige zitgedeelte, terwijl er tevens volop ruimte is voor een royale eettafel om uitgebreid te tafelen met familie en vrienden.

De keuken is voorzien van hoogwaardige Siemens inbouwapparatuur, waaronder een inductiekookplaat met afzuigkap, Quooker heetwaterkraan, vaatwasser, koelkast met vriezer, oven, spoelbak met mengkraan en volop kastruimte dankzij de onderlades, kasten en bovenkasten. Het natuursteenlook aanrechtblad en de spatrand maken het geheel stijlvol af. 

Via de hal bereikt u tevens een extra kamer die perfect te gebruiken is als thuiswerkplek, studeerkamer of logeerkamer. Vanuit deze ruimte heeft u toegang tot het eerste balkon aan de achterzijde. Dit balkon ligt op het zuidwesten, waardoor u hier heerlijk van de middag- en avondzon kunt genieten.

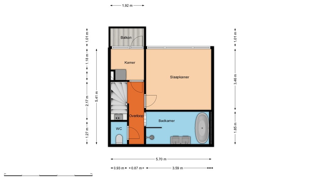
Vierde verdieping
Op de overloop vindt u een praktische bergkast met de opstelling van de CV-combiketel en toegang tot het tweede toilet, de badkamer en twee slaapkamers.

De royale hoofdslaapkamer is opvallend licht dankzij de grote ramen en biedt volop ruimte voor een tweepersoonsbed en een grote garderobekast. 

De tweede slaapkamer is wat compacter, maar ideaal als kinder-, werk- of logeerkamer. Vanuit deze kamer heeft u toegang tot het tweede balkon, eveneens gelegen op het zonnige zuidwesten.

De luxe badkamer straalt pure elegantie uit en is ingericht met een ruime inloopdouche, een modern wastafelmeubel met dubbele wastafel en een ligbad. De afwerking bestaat uit lichte wandtegels in combinatie met stijlvolle zwarte kranen en details. Inbouwspots en een dakraam zorgen voor een fijne, rustige sfeer met veel natuurlijk licht.

Kortom: een sfeervolle, luxe afgewerkte woning op een toplocatie waar comfort, licht en stijl perfect samenkomen. Een ideale plek om direct te genieten van alles wat Blijdorp en de stad te bieden hebben.

Afmetingen
Tweede verdieping ca. 69,23 m²
Derde verdieping ca. 1,48 m²
Vierde verdieping ca. 30,83 m²

Totale woonoppervlakte ca. 101,5 m²

Bijzonderheden 
Eigen grond, bouwjaar ca. 1933, volledig gerenoveerd in 2020/2021, nieuwe meterkast, energielabel D, warmwater en verwarming middels CV-combiketel (Remeha, 2008), kunststof kozijnen met dubbele beglazing. Gezonde vereniging van Eigenaren met een maandelijkse bijdrage van € 98,22. Oplevering in overleg. 

Bezichtigingsafspraak
Maak direct een afspraak om deze uitstekend onderhouden bovenwoning met twee balkons op het zonnige zuidwesten om te bezichtigen!

De gegeven informatie is met zorgvuldigheid opgesteld, aan de juistheid kunnen echter geen rechten worden ontleend. Alle verstrekte informatie moet beschouwd worden als een uitnodiging tot het doen van een aanbod of om in onderhandeling te treden. Aan deze tekst en de plattegronden kunnen geen rechten worden ontleend.

Kenmerken