Beschrijving
Een pareltje in het geliefde Kleiwegkwartier! Deze ruime bovenwoning met drie verdiepingen telt zes kamers en heeft een fijn balkon. Prachtig dat de originele jaren ’30 details behouden zijn gebleven, zoals de glas-in-loodbovenramen en paneeldeuren. Wat een fijne woning! Hier combineer je het comfort van de ligging dichtbij de stad met de rust.
De ligging van de woning is uitstekend te noemen. Het is fijn en rustig wonen in het Kleiwegkwartier. In de omgeving vindt u leuke koffietentjes, gezellige winkels en meerdere supermarkten voor de dagelijkse boodschappen. Alle stadse voorzieningen zijn dichtbij gelegen, evenals het openbaar vervoer (o.a. tram en treinstation Rotterdam Noord) en diverse uitvalswegen. Het centrum van Rotterdam en Rotterdam Centraal zijn binnen 10 minuten per fiets te bereiken.
Daarnaast ligt de rivier de Rotte vlakbij, waar je heerlijk kunt wandelen, hardlopen of varen. Zo combineer je hier de levendigheid van Rotterdam met de rust van de natuur.
Indeling
Al bij het bekijken van de woning vanaf de straat valt op dat dit een sfeervolle woning is. De nette gevel, de glas-in-loodbovenramen en de toog die naar de voordeur leidt, dragen hieraan bij. Dit is zo’n huis waar je nieuwsgierig van wordt nog vóór je binnen bent.
Begane grond
De voordeur biedt toegang tot de trap die u naar de hal op de eerste verdieping brengt.
Eerste verdieping
De hal vormt het centrale punt en geeft toegang tot de woonkamer, achterkamer, keuken en het toilet.
Aan de voorzijde ligt de ruime, lichte woonkamer met een prachtige erker die zorgt voor een fijn lichtinval. De glas-in-loodbovenramen, strakke wanden en prettige sfeer maken dit een fijne plek om te ontspannen.
Ook de keuken bevindt zich aan de voorzijde en is uitgevoerd met een verzorgd keukenblok met olijfgroene onder- en bovenkasten en een grijs werkblad, stijlvol en tijdloos.
De achterkamer is een echte verrassing. Via klassieke openslaande deuren met glas-in-loodbovenramen stap je zo het beschutte terras op. Hier geniet je al vroeg in het seizoen van de ochtendzon met een kop koffie. Deze ruimte is veelzijdig: kies je voor een aparte eetkamer en zitkamer, een werkkamer, of misschien zelfs een extra slaapkamer? De mogelijkheden zijn er.
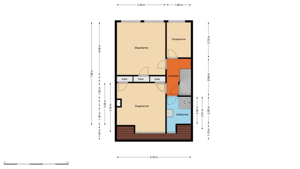
Tweede verdieping
Op deze verdieping bevinden zich drie slaapkamers en de badkamer. Alle kamers zijn netjes afgewerkt met een houtlook laminaatvloer en strakke wanden. Er zijn twee ruime slaapkamers met vaste kasten en een derde, kleinere kamer die perfect is als logeerkamer, werkplek of hobbyruimte.
De badkamer ligt aan de voorzijde en is verzorgd uitgevoerd met witte wandtegels, grijze vloertegels, een douchehoek en een wastafelmeubel.
Derde verdieping
De zolderkamer is ronduit fantastisch. Dankzij drie grote dakramen is dit een heerlijk lichte
Tweede verdieping
Op deze verdieping bevinden zich drie slaapkamers en de badkamer. Alle kamers zijn netjes afgewerkt met een houtlook laminaatvloer en strakke wanden. Er zijn twee ruime slaapkamers met vaste kasten en een derde, kleinere kamer die perfect is als logeerkamer, werkplek of hobbyruimte.
De badkamer ligt aan de voorzijde en is verzorgd uitgevoerd met witte wandtegels, grijze vloertegels, een douchehoek en een wastafelmeubel.
Derde verdieping
De zolderkamer is ronduit fantastisch. Dankzij drie grote dakramen is dit een heerlijk lichte ruimte. De wanden zijn strak gestukt en er is een laminaatvloer. Een ideale extra slaapkamer, studio, werkruimte of speelkamer.
Kortom: een sfeervolle woning met karakter, licht en verrassend veel mogelijkheden. Een plek waar je je meteen thuis voelt.
Afmetingen
Begane grond ca. 1,5 m²
Eerste verdieping ca.45,3 m²
Tweede verdieping ca. 47,29 m²
Derde (zolder) verdieping ca. 14,35 m²
Balkon ca. 3,9 m²
Totale woonoppervlakte ca. 108 m²
Bijzonderheden
Eigen grond, bouwjaar 1934, energielabel D (geldig tot 08-10-2035), intern en extern gerenoveerd, schilderwerk intern en extern (najaar 2025), recent opgerichte VvE met een maandelijkse bijdrage van €154,62. Oplevering in overleg.
Bezichtigingafspraak
Maak direct een afspraak om deze mooie, ruime bovenwoning midden in de mooie, fijne wijk ‘Kleiwegkwartier’ te bezichtigen!
* De gegeven informatie is met zorgvuldigheid opgesteld, aan de juistheid kunnen echter geen rechten worden ontleend. Alle verstrekte informatie moet beschouwd worden als een uitnodiging tot het doen van een aanbod of om in onderhandeling te treden.
Plattegronden
181486558_lisbloemstraat_eerste_verdiepi_eerste_verdiepi_20260126_cec084.jpg
181486558_lisbloemstraat_tweede_verdiepi_tweede_verdiepi_20260126_6d68dc.jpg
181486558_lisbloemstraat_derde_verdiepin_derde_verdiepin_20260126_5e6caa.jpg
181486558_lisbloemstraat_entree_entree_20260126_1d8d1d.jpg