Beschrijving

Heerlijk licht en royaal 5-kamerappartement met balkon, perfect gelegen in de geliefde en populaire wijk Blijdorp. Dankzij de grote raampartijen baadt de woning in natuurlijk licht en voelt elke ruimte aangenaam ruim en uitnodigend. Een ideale plek voor wie comfortabel en stijlvol wil wonen op een rustige locatie vlakbij het bruisende Centrum van Rotterdam.

De ligging van de woning is uitstekend te noemen!
In de straat en directe omgeving vindt u leuke koffietentjes, gezellige winkels en een supermarkt voor de dagelijkse boodschappen. 
Steekt u de straat over heeft u een buitenzwembad tot uw beschikking van het recent gerenoveerde Van Maanenbad. Alle stadse voorzieningen zijn dichtbij gelegen evenals openbaar vervoer (o.a. Randstad Rail Blijdorp of Centraal Station Rotterdam) en uitvalswegen.

Dit charmante bovenhuis combineert sfeervolle jaren-30-details met een prettige, ruime indeling en veel licht. Met een royale woonverdieping, twee slaapkamers, een balkon op het noordwesten en een eigen entree vanaf de eerste verdieping biedt deze woning een heerlijk thuis in een rustige, brede straat.

Indeling
Begane grond 
Via het open portiek bereik je de eigen voordeur op de eerste etage. Hier kom je binnen in een ruime hal met voldoende plek voor de garderobe. Vanuit deze hal leidt een vaste trap naar de derde verdieping, waar de woonverdieping zich bevindt.

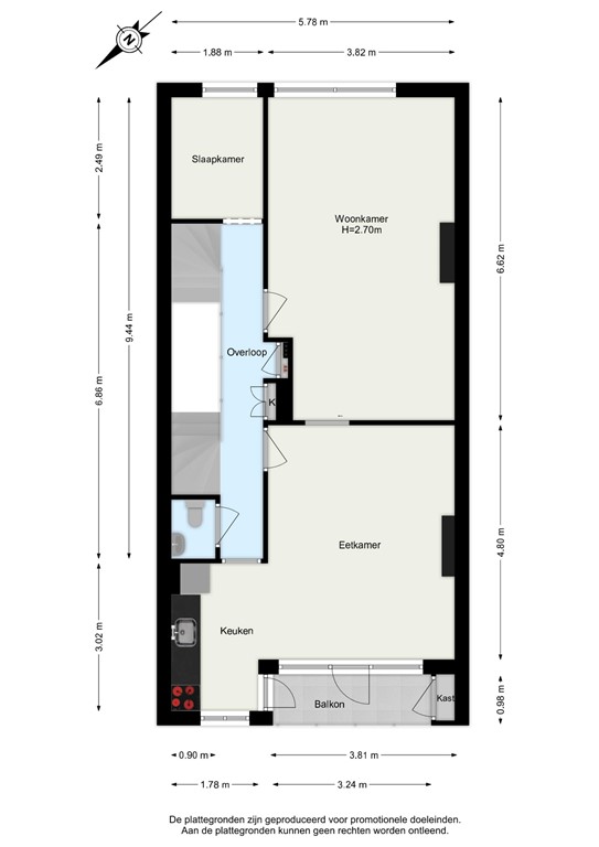
Derde verdieping 
Op de derde verdieping kom je binnen in een lange, overzichtelijke hal die toegang geeft tot de wc-ruimte, de voor-/zijkamer, de eetkamer en de woonkamer. In de hal bevindt zich ook de meterkast en de trapopgang naar 
de vierde verdieping.

De woonkamer aan de voorzijde is een prachtige, lichte ruimte dankzij het grote raam dat uitkijkt over de brede straat. De nette laminaatvloer loopt door over de gehele verdieping, wat zorgt voor een rustige en stijlvolle uitstraling.

Via een brede schuifdeur is de eetkamer aan de achterzijde bereikbaar. Een groot pluspunt, want je kunt deze twee kamers volledig van elkaar scheiden voor extra privacy, of juist met elkaar verbinden tot één open geheel. 

Vanuit de eetkamer is er toegang tot het balkon op het noordwesten, een fijne plek om rustig buiten te zitten en te genieten van een drankje in de namiddagzon.

De open keuken grenst direct aan de eetkamer en is uitgerust met alle benodigde inbouwapparatuur. De volgende inbouwapparatuur is aanwezig: oven, 4-pits gaskookplaat, afzuigkap, vaatwasser, koelkast en vriezer. De speelse, geglazuurde wandtegels geven de keuken een vrolijke en karaktervolle uitstraling. Ook vanuit de keuken is er ook toegang tot het balkon.

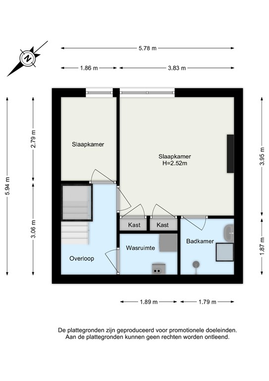
Vierde verdieping
Op de vierde verdieping kom je boven op een ruime overloop, die dankzij een grote lichtkoepel baadt in natuurlijk daglicht. Vanaf hier heb je toegang tot twee slaapkamers en de praktische wasruimte, waar zich de CV-combiketel en de aansluitingen voor de wasmachine bevinden.

De hoofdslaapkamer is royaal van formaat en biedt directe toegang tot de badkamer, voorzien van een douche met thermostaatkraan en een wastafel. De badkamer is stijlvol betegeld in zwart en wit, terwijl een daklicht zorgt voor prettige daglichttoetreding.

De tweede slaapkamer heeft een ideaal formaat voor gebruik als kinderkamer, logeerkamer of kastenkamer. 

Afmetingen
Woonoppervlakte ca. 103 m²
Balkon ca. 3m²

Bijzonderheden
Eigen grond, bouwjaar 1934, energielabel C, dakisolatie, actieve VvE met maandelijkse bijdrage van €85,70 (vanaf 01-01-2026 zal de bijdrage €88,27 zijn), verwarming en warm water middels CV-combiketel (Intergas HRW, 2014). Oplevering in overleg.

Bezichtiging
U bent van harte welkom om dit verzorgde, lichte en ruime 5-kamerappartement met balkon te bezichtigen!

De gegeven informatie is met zorgvuldigheid opgesteld, aan de juistheid kunnen echter geen rechten worden ontleend. Alle verstrekte informatie moet beschouwd worden als een uitnodiging tot het doen van een aanbod of om in onderhandeling te treden.

Kenmerken