Beschrijving

Aan de Bentincklaan in de wijk Blijdorp, bevindt zich dit sfeervolle 4-kamerappartement op de zesde (top)verdieping. Een woning in het complex met betonnen constructie uit 1982 pal tegenover de oude ingang van Diergaarde Blijdorp. De woning heeft een riante leefruimte met woonkamer en aparte eetkamer, een nette laminaatvloer, een groot balkon op het zuiden en een fenomenaal uitzicht. Er is een eigen berging op de begane grond aanwezig. 
 
De ligging is uitstekend te noemen!
Op loopafstand vind je winkels, gezellige horeca, scholen en sportfaciliteiten. Bovendien zijn zowel het Vroesenpark als Diergaarde Blijdorp vlakbij. Met de fiets sta je binnen enkele minuten in het bruisende stadscentrum van Rotterdam en dankzij de uitstekende verbindingen met het openbaar vervoer en de nabijheid van uitvalswegen is de bereikbaarheid optimaal.

Indeling 
Begane grond
Je wordt verwelkomd in een verzorgd en afgesloten portiek met brievenbussen en bellentableau. Met de lift of trap bereik je comfortabel de zesde verdieping. Eigen berging aanwezig.

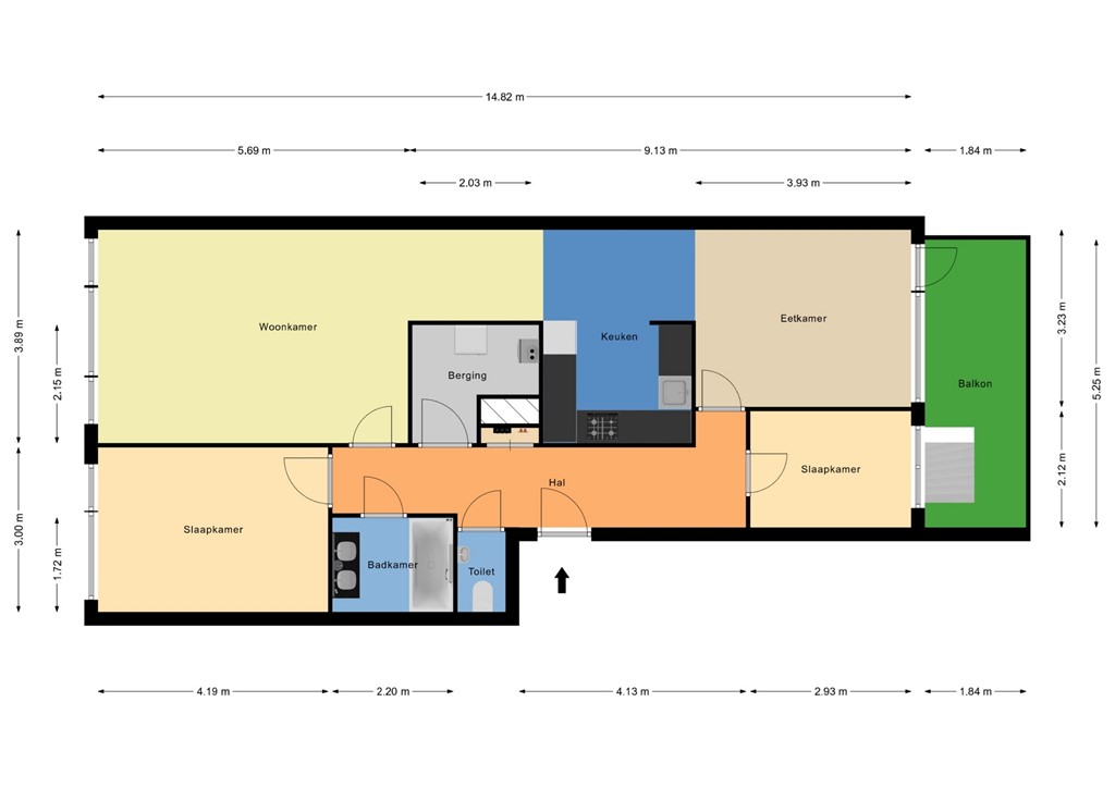
Zesde verdieping
Bij binnenkomst valt de ruime hal direct op. De hal biedt toegang tot de woonkamer, eetkamer, toiletruimte, badkamer en twee slaapkamers. Daarnaast vind je hier een grote bergkast met cv-installatie en een aparte meterkast, praktisch en netjes weggewerkt.

De lichte en royale woonkamer ligt aan de voorzijde van het appartement en wordt overspoeld met natuurlijk daglicht dankzij de grote raampartijen. Vanuit hier heb je een werkelijk prachtig uitzicht op Diergaarde Blijdorp, de flamingo’s zijn zelfs te zien! Een uniek en levendig uitzicht dat nooit verveelt. De woonkamer is keurig afgewerkt met gestuukte wanden en een moderne laminaatvloer en staat in open verbinding met de keuken.

De keuken vormt het hart van de woning en is slim gesitueerd tussen de woon- en eetkamer. De praktische U-opstelling biedt veel werk- en opbergruimte en is uitgevoerd in fris wit met aluminium accenten en een stijlvol zwart aanrechtblad. De keuken is volledig uitgerust met een 5-pitsgasfornuis met grillplaat, brede oven, afzuigkap en vaatwasser. De losse koel-/vriescombinatie is ter overname. Daarnaast heeft de keuken een dubbele spoelbak. 
Kortom, een fijne keuken voor de kookliefhebber!

Aan de achterzijde bevindt zich de eetkamer, een royale ruimte met dezelfde nette afwerking als de woonkamer. Deze kamer is eenvoudig af te sluiten en daardoor ook perfect te gebruiken als extra slaapkamer. Vanuit hier stap je direct het ruime balkon op.

Het balkon op het zuiden is een heerlijke plek om te ontspannen. Hier geniet je de hele dag van de zon en van het vrije uitzicht richting het centrum van Rotterdam en de atletiekvelden van Nenijto.

De hoofdslaapkamer ligt aan de voorzijde en biedt volop ruimte voor een tweepersoonsbed en een grote kastenwand. Ook vanuit hier geniet je van het bijzondere uitzicht op Diergaarde Blijdorp.

De badkamer is modern betegeld met witte wand- en zwarte vloertegels en beschikt over een ligbad met handdouche en een dubbele wastafel met onder- en bovenkast, praktisch en stijlvol tegelijk.

De tweede slaapkamer doet momenteel dienst als werk- of studeerkamer, maar is groot genoeg om als volwaardige slaapkamer te gebruiken.

Afmetingen 
Totale woonoppervlakte ca. 91,5 m²
Balkon ca. 9,5 m²
Berging ca. 3,5 m²

Dit ruime en lichte appartement biedt een unieke combinatie van comfort, uitzicht en ligging. Met het levendige diergaarde Blijdorp als decor, het centrum van Rotterdam op korte afstand én een zonnig balkon is dit een woning waar je elke dag met plezier thuiskomt!

Bijzonderheden 
Erfpacht (einddatum 30-06-2056, canon afgekocht tot 30-06-2031, GUNSTIGE indicatie verdere afkoop vanuit gemeente Rotterdam zie dataroom), bouwjaar 1982, beschermd stadgezicht, volledig voorzien van dubbele beglazing houten en stalen kozijnen, warm water en verwarming via cv-ketel (ATAG, 2014), energielabel C, actieve VvE met maandelijkse bijdrage van € 207,13. Oplevering in overleg. 

Bezichtigingsafspraak 
Maak direct een afspraak om dit ruime, sfeervolle 4-kamerappartement met balkon op het zuiden in het geliefde Blijdorp te bezichtigen! 

De gegeven informatie is met zorgvuldigheid opgesteld, aan de juistheid kunnen echter geen rechten worden ontleend. Alle verstrekte informatie moet beschouwd worden als een uitnodiging tot het doen van een aanbod of om in onderhandeling te treden.

Kenmerken